新闻资讯中心News Center
13060056368
设置挡烟垂壁是划分防烟分区的主要措施,但不是唯一措施,还可使用隔墙形成独立的分隔空间,形成储烟仓和防烟分区。另外建筑的结构梁也可划分为防烟分区使用。防烟分区的设置须严格按照现行《建筑防烟排烟系统技术标准GB51251-2017》进行,那么其中对防烟分区的设置要求有哪些呢?

防火布挡烟垂壁-防烟分区
1、挡烟垂壁作为防烟分区设计的高度要求。应综合以下三点因素确定:A、建筑所需的清晰高度;B、设置排烟的可开启外窗或排烟风机的数量;C、需设置挡烟垂壁的区域内是否有吊顶及吊顶方式。固定式与活动式挡烟垂壁工作方式不同,活动挡烟垂壁的性能应符合行业标准《挡烟垂壁》GA 533的技术要求。

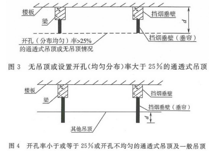
2、挡烟垂壁等挡烟分隔设施的储烟仓厚度要求。(1)在采用自然排烟的情况下,储烟仓的高度不应小于空间净高的20%,且不小于500mm;(2)采用机械排烟的情况下,储烟仓高度不小于空间净高的10%,且不小于500mm。储烟仓底部距离地面的高度应大于安全疏散所需的最小清晰高度。(3)对于有吊顶的空间,当吊顶开孔不均匀或开孔率≤25%时,吊顶内空间高度不计入储烟仓深度。
3、采用隔墙作为防烟分区,不能同其他相邻区域或房间叠加面积作为防烟分区的设计值。
4、建筑内设置有排烟设施的敞开楼梯和自动扶梯穿越楼板的开口部位应设置挡烟垂壁等防烟设施。上下两层属于不同防烟分区,设置挡烟垂壁或垂帘,可阻挡烟气向上层蔓延,不可叠加计算防烟分区。

楼梯间挡烟垂壁
5、公共和工业建筑的防烟分区最大允许面积及长边最大允许长度应符合下表规定。当工业建筑采用自然排烟时,所设计防烟分区的长边长度不应大于建筑内空间净高的8倍。
公共建筑、工业建筑防烟分区的最大允许面积及其长边最大允许长度
| 空间净高H(m) | 最大允许面积(㎡) | 长边最大允许长度(m) |
| H≤3.0 | 500 | 24 |
| 3.0<H≤6.0 | 1000 | 36 |
| H>6.0 | 2000 | 60m;具有自然对流条件时,不应大于75m |

四川大硅特??萍?/a>是挡烟垂壁设计、定制、安装为一体的现代化高新技术企业,材质多样,货源充足,资质齐全,发货速度快,全国配送,安装美观,保障消防验收,项目经理全程技术指导,欢迎有需要的客户来我司实地考察参观。
相关阅读:
防火玻璃隔断作为建筑防火分隔的核心构件,兼具防火隔烟、空间通透与装饰功能,既能满足《建筑设计防火规范》(GB 50016)等标准要求,又能适配不同场景的使用需求。防火玻璃隔断在办公、商场、医院等人员密集场...
公司简介 四川大硅特??萍加邢薰臼且患壹刂植AЧδ苎蟹?、设计、销售、服务为一体的现代化高新科技企业,公司营销中心位于天府之国成都-龙泉驿经济技术开发区总部经济港F4栋。 公司在发展过程中,研发与生产并重,现已获得防雾玻璃、防弹玻璃、太阳节能玻璃、隔音隔热玻璃、智能调光玻璃等12项实用新型发明专利。公司发展成果也获得行业及政府机构肯定: 2017年,成功入围成都市“创业新星计划”。 2018年,获得中国玻璃...
查看详情
定制产品10天发货
可包运输包安装

多年研发经验
造就优良产品质量

产品可开具增值税
专用发票

产品技术支持
7x24小时保障